top of page

The Backyard
Where Life Happens.
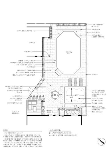
This full backyard transformation was designed to support both relaxation and recreation for a growing family. An existing pool anchors the space, surrounded by patio space with intentional design choices to define distinct outdoor rooms. An integrated putting green encourages play, while carefully planned lighting extends the experience well into the evening. The result is a backyard that functions as a private retreat by day and an inviting destination after dark.
bottom of page








